Biệt thự T&T City Millennia: Đánh giá chi tiết & tiềm năng đầu tư
Bạn đang tìm kiếm một không gian sống xứng tầm và một tài sản giá trị tại khu đô thị Long Hậu? Bài viết này sẽ phân tích toàn diện về sản phẩm biệt thự T&T City Millennia, dòng sản phẩm cao cấp nhất tại đại dự án T&T City Millennia. Chúng tôi sẽ cung cấp một cái nhìn tổng quan T&T City Millennia qua các yếu tố cốt lõi: vị trí chiến lược, hệ sinh thái tiện ích, thiết kế sang trọng, pháp lý và các chính sách bán hàng mới nhất. Hãy khám phá để thấy rõ tại sao đây là lựa chọn đầu tư và an cư lý tưởng tại cửa ngõ Nam Sài Gòn.
Tổng quan T&T City Millennia: những thông tin cốt lõi
Để hiểu rõ bối cảnh phát triển của sản phẩm, trước tiên hãy cùng điểm qua những thông số pháp lý và quy hoạch của toàn bộ đại đô thị. Đây là những yếu tố nền tảng định hình nên giá trị của T&T City Millennia.
| Tên chính thức | T&T City Millennia |
| Chủ đầu tư | Công ty Cổ phần Thái Sơn Long An (Thành viên T&T Group) |
| Đơn vị phát triển | T&T Homes (thuộc T&T Group) |
| Vị trí | Xã Long Hậu, huyện Cần Giuộc, tỉnh Long An |
| Tổng quy mô | 267.32 ha |
| Thiết kế cảnh quan | Belt Collins International (Mỹ) |
| Quản lý vận hành | Anabuki (Nhật Bản) |
| Các loại hình sản phẩm | Nhà phố, Shophouse, Biệt thự song lập, Biệt thự vườn |
| Tình trạng pháp lý | Rõ ràng, minh bạch, sở hữu lâu dài |
Phân tích vị trí T&T City Millennia & tiềm năng kết nối
Một trong những câu hỏi đầu tiên của khách hàng là “địa chỉ T&T City Millennia ở đâu?”. Vị trí của dự án chính là yếu tố then chốt tạo nên giá trị bền vững.
1. Tâm điểm kết nối vàng hiện hữu
Vị trí T&T City Millennia án ngữ ngay mặt tiền đường 826E (quy hoạch 48m), tạo thành một trục kết nối T&T City Millennia thẳng từ KCN Hiệp Phước đến Phú Mỹ Hưng (Quận 7). Vị thế này không chỉ giúp cư dân di chuyển thuận tiện mà còn đón đầu làn sóng dịch chuyển dân cư chất lượng cao. Bao quanh dự án là gần 7km sông rạch tự nhiên, kiến tạo một không gian sống trong lành và thịnh vượng.
2. Đón đầu tiềm năng cần giuộc long an từ quy hoạch hạ tầng
Tiềm năng T&T City Millennia còn được thúc đẩy mạnh mẽ bởi 5 công trình giao thông trọng điểm. Các đại dự án như Cao tốc Bến Lức – Long Thành, Vành đai 3, Vành đai 4 đang được đẩy nhanh tiến độ. Đặc biệt, việc khởi công cầu Rạch Tôm (2025) và Rạch Dơi (2027) sẽ là cú hích trực tiếp, giúp việc di chuyển vào trung tâm TP.HCM trở nên liền mạch.
Review hệ thống tiện ích T&T City Millennia đẳng cấp
Dự án T&T City Millennia được quy hoạch với một hệ sinh thái tiện ích toàn diện, nơi mọi nhu cầu của cư dân đều được đáp ứng ngay ngưỡng cửa.
- Giáo dục & Sức khỏe: Trường học FPT dự kiến tuyển sinh năm 2026, cùng hệ thống trường học liên cấp và cơ sở y tế nội khu, tạo ra một môi trường phát triển toàn diện.
- Giải trí & Cảnh quan: Điểm nhấn đặc biệt của tiện ích T&T City Millennia là 2 công trình kỷ lục Việt Nam: phố đi bộ T&T City Millennia (Millennia Journey) và sông ánh sáng T&T City Millennia (Light River). Với 45ha diện tích mặt nước và cây xanh, đây là dự án sở hữu công viên lớn nhất khu Nam Sài Gòn.
- Thương mại & Dịch vụ: Siêu thị Co.op Mart, bến thuyền, chợ nổi và các khu thể thao phức hợp mang đến một cuộc sống nghỉ dưỡng mỗi ngày.
Chủ đầu tư T&T Group & pháp lý T&T City Millennia
1. Uy tín từ chủ đầu tư T&T City Millennia
Vậy T&T Group là ai? Được phát triển bởi T&T Group, một trong 10 Nhà phát triển Bất động sản hàng đầu Việt Nam trong nhiều năm liền (2021, 2022, 2023), dự án thừa hưởng nền tảng uy tín vững chắc. Câu hỏi “T&T Homes có uy tín không?” được trả lời bằng chính năng lực triển khai và các giải thưởng danh giá mà đơn vị phát triển này đã đạt được.
2. Tính minh bạch của pháp lý dự án
Pháp lý T&T City Millennia rất rõ ràng và minh bạch. Dự án có đầy đủ các giấy tờ cần thiết, đảm bảo an toàn tuyệt đối cho khách hàng. Về câu hỏi “T&T City Millennia có sổ không?”, chủ đầu tư cam kết sẽ đẩy nhanh quá trình cấp Sổ Hồng cho khách hàng ngay sau khi hoàn tất các nghĩa vụ theo hợp đồng.
Khám phá mặt bằng & thiết kế biệt thự T&T City Millennia
Mặt bằng T&T City Millennia được quy hoạch thông minh, tối ưu không gian xanh và sự riêng tư. Bên cạnh các sản phẩm như nhà phố và shophouse, dòng biệt thự T&T City Millennia là sự kết tinh của nghệ thuật kiến trúc và trải nghiệm sống thượng lưu.
Biệt thự song lập: Với diện tích đất điển hình 10x20m và kết cấu 3 tầng, đây là giải pháp cân bằng hoàn hảo giữa không gian chung và riêng tư cho các gia đình nhiều thế hệ.
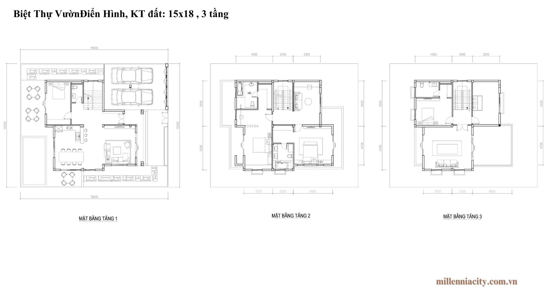
Biệt thự vườn: Là sản phẩm cao cấp nhất với diện tích đất điển hình 15x18m xây dựng 3 tầng, mang đến một không gian sống hoàn toàn riêng tư và biệt lập.
Giá bán T&T City Millennia & chính sách thanh toán
Vấn đề tài chính luôn là quan tâm hàng đầu. Dưới đây là thông tin về giá bán T&T City Millennia và các chính sách ưu đãi mới nhất. Là dòng sản phẩm giới hạn, bảng giá T&T City Millennia cho các căn biệt thự sẽ tương xứng với giá trị độc bản mà sản phẩm mang lại. Để nhận báo giá chính xác, quý khách vui lòng liên hệ trực tiếp.
Chính sách thanh toán T&T City Millennia và các ưu đãi (dự kiến):
- Chiết khấu đặt chỗ: Ưu đãi 1% khi booking trước ngày mở bán.
- Hỗ trợ tài chính: Vay đến 80% giá trị hợp đồng, hỗ trợ lãi suất trong 24 tháng, ân hạn nợ gốc và miễn phí trả nợ trước hạn.
- Thanh toán nhanh: Chiết khấu đặc biệt lên đến 12%.
- Phí quản lý: Miễn 100% phí trong 36 tháng và giảm 50% trong 24 tháng tiếp theo.
Có nên đầu tư T&T City Millennia năm 2025?
Với những phân tích trên, việc đầu tư T&T City Millennia mang lại tiềm năng lớn bởi các lý do:
- Vị trí chiến lược: Đón đầu sóng hạ tầng khu Nam.
- Chủ đầu tư uy tín: T&T Group là bảo chứng cho chất lượng và tiến độ.
- Sản phẩm khác biệt: Không gian sống nghỉ dưỡng với các tiện ích độc đáo.
- Pháp lý an toàn: Minh bạch và rõ ràng.
- Chính sách hấp dẫn: Tối ưu hóa dòng tiền cho nhà đầu tư.
Cập nhật tiến độ T&T City Millennia
Tiến độ T&T City Millennia đang được triển khai rất tốt. Hình ảnh thực tế T&T City Millennia cho thấy nhiều hạng mục hạ tầng và cảnh quan đã hoàn thiện, các dãy nhà đã thành hình. Các tiện ích điểm nhấn đã đi vào vận hành, minh chứng cho cam kết mạnh mẽ từ chủ đầu tư.
Giải đáp thắc mắc về việc mua nhà T&T City Millennia
- Giá bán chính xác của biệt thự là bao nhiêu?
Giá trị của mỗi căn biệt thự sẽ được định giá dựa trên loại hình, diện tích và vị trí. Để nhận được bảng giá chính xác nhất, vui lòng liên hệ hotline của chúng tôi. - Khi nào dự án bàn giao biệt thự?
Dự án được bàn giao theo từng giai đoạn. Với các sản phẩm đã xây dựng, khách hàng có thể nhận nhà ngay. - Phí quản lý tại đây được tính như thế nào?
Chủ đầu tư đang có chính sách miễn phí 3 năm đầu và giảm 50% trong 2 năm tiếp theo. Sau đó, mức phí sẽ theo quy định của đơn vị vận hành Anabuki (Nhật Bản). - Quy trình cấp Sổ Hồng diễn ra như thế nào?
Dự án có pháp lý hoàn chỉnh. Chủ đầu tư sẽ triển khai thủ tục cấp Sổ Hồng cho khách hàng ngay sau khi hoàn tất nghĩa vụ tài chính và nhận bàn giao nhà. - Làm thế nào để tham quan dự án?
Chúng tôi luôn sẵn sàng đón tiếp quý khách đến tham quan thực tế. Vui lòng đặt lịch hẹn trước qua hotline để được hỗ trợ chu đáo.
